Ga naar inhoud

Te koop: woonhuis Hoflaan 16 3956 EE Leersum

Verkocht

€ 399.000,- k.k.

Ruime 2-onder-1-kap woning met potentie op prachtig perceel van 395m² in Leersum!

Ben jij op zoek naar een karakteristieke woning met de mogelijkheid om jouw droomhuis te creëren? Deze 2-onder-1-kapwoning in het pittoreske Leersum biedt niet alleen een royale tuin, maar ook een zee aan mogelijkheden. Gelegen op een prachtig perceel van maar liefst 395m², is dit de ideale plek om jouw eigen woonwensen werkelijkheid te maken.

De woning is maar liefst ruim 70 jaar bewoond geweest door de huidige eigenaren, wat zorgt voor een warme geschiedenis en karakter. Het huis heeft echter wel een opknapbeurt nodig, waardoor je de kans hebt om het volledig naar eigen smaak en wensen te vernieuwen en in te richten. Het grote perceel biedt tal van mogelijkheden om bijvoorbeeld een uitbouw, een tuinparadijs of een duurzame renovatie te realiseren.

De ligging in Leersum, een dorp omgeven door de prachtige natuur van de Utrechtse Heuvelrug, biedt niet alleen rust, maar ook uitstekende verbindingen naar de omliggende steden. Winkels, scholen en andere voorzieningen bevinden zich op korte afstand, waardoor je zowel van de landelijke charme als van het gemak van de stad kunt genieten.

Met jouw eigen visie en creativiteit kun je hier een unieke woning realiseren die volledig past bij jouw wensen. Grijp deze kans om de woning van je dromen te creëren op een geweldige locatie!

Indeling
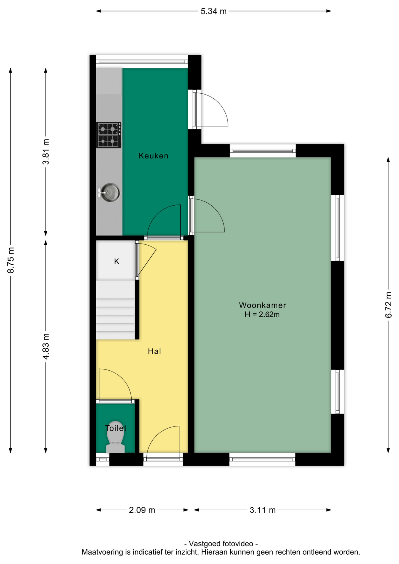
Begane grond
Via de grote voortuin kom je bij de voordeur, waarna je vervolgens de ruime entreehal betreedt die voorzien is van een klein bordes. Hieraan grenzen de toiletruimte en de trapopgang. Vanuit de hal zijn ook de kelder en de keuken bereikbaar. De kelder heeft een stahoogte van 1,73 meter en een oppervlakte van 6m2. De aanwezige koekoek zorgt voor daglichttoetreding én ventilatie. De keuken is voorzien van een eenvoudig keukenblok met een spoelbak, elektrische oven, keramische kookplaat, afzuigkap en een koelkast. Verder is de keuken voorzien van een aansluiting voor de wasmachine, een boiler (Inventum, 80 liter; huur) en een deur naar de tuin.

Vanuit de keuken is de woonkamer bereikbaar. Deze heeft een oppervlakte van 21m2 en is door de ramen in voor-, zij- en achtergevel heerlijk licht!

1e Verdieping
Aan de overloop grenzen 3 slaapkamers en de badkamer. De slaapkamers hebben een oppervlakte van 10, 8 en 5m2 en de grootste twee zijn voorzien van een inbouwkast. Aan de achterzijde is een grote dakkapel geplaatst, wat ten gunste komt van de ruimte en lichtinval in de grootste slaapkamer en de badkamer. De badkamer is eenvoudig ingericht met een douchebak, een wastafel met planchet en spiegel en een radiator.

2e Verdieping
Deze verdieping is afsluitbaar met een luik en bereikbaar met een losse trap. Je vindt hier een ruime bergzolder (nokhoogte 2,41 meter) met een klein dakraam. Ook staat de HR cv-combiketel hier opgesteld; deze is van het merk Nefit (type ProLine NxT HRC 30/CW5) en is in 2022 nieuw geplaatst. In de huidige situatie wordt de cv-ketel uitsluitend voor het verwarmen van de woning gebruikt en voorziet een boiler in warm water.

Tuin
De enorme tuin maakt dit huis extra interessant. Want met een diepte van 32 meter en een breedte van 8 meter biedt de tuin veel mogelijkheden. Niet alleen om de woning uit te bouwen, maar ook om de tuin naar eigen ideeën in te richten. Door het grote oppervlak is er genoeg ruimte voor een garage, veranda, moestuin, trampoline of wat je maar wenst! De tuin is gesitueerd op het westen en is voorzien van een stenen berging, gras en bestrating. Ook heb je hier de luxe van een eigen oprit, waar je plaats genoeg hebt voor een aantal auto’s. De Doordat de woning een stukje van de openbare weg afstaat, heb je hier ook een ruime voortuin tot je beschikking.

Kenmerken
Gebruiksoppervlakte: ca. 74m2
Overige inpandige ruimte: ca. 15m2
Externe bergruimte: ca. 12m2
Inhoud woning: ca. 347m3
Grondoppervlakte: 395m2
Bouwjaar: ca. 1948

Oppervlakten
Souterrain
Kelder: ca. 6m2

Begane grond
Woonkamer: ca. 21m2
Keuken: ca. 8m2

1e Verdieping
Slaapkamer I: ca. 10m2
Slaapkamer I: ca. 8m2
Slaapkamer I: ca. 5m2
Badkamer: ca. 4m2

2e Verdieping
Zolderverdieping: ca. 9m2

Tuin
Berging: ca. 12m2

Omgeving
Leersum is een pittoresk dorp dat omringd wordt door de prachtige natuur van de Utrechtse Heuvelrug en biedt de perfecte balans tussen rust, ruimte en gemak. Gelegen op slechts een steenworp afstand van het bruisende Utrecht en de snelwegen A12 en A27, is Leersum de ideale plek voor wie de stad wil ontvluchten zonder concessies te doen op bereikbaarheid.
Met zijn charmante dorpskern, sfeervolle straatjes en diverse voorzieningen, biedt Leersum alles wat je nodig hebt. Van gezellige winkels en lokale markten tot goede scholen en sportfaciliteiten; hier voel je je snel thuis. Maar wat Leersum echt bijzonder maakt, is de overvloed aan natuur. Het Nationaal Park Utrechtse Heuvelrug nodigt uit voor wandel- en fietstochten, terwijl de omliggende bossen en heidevelden perfect zijn voor ontspanning en recreatie.

  • 74 m2
  • 395 m2
  • 3

Kenmerken Hoflaan 16

Overdracht

Koopprijs€ 399.000,- k.k.
AanvaardingIn overleg

Oppervlaktes en inhoud

Perceel oppervlakte395 m2
Woonoppervlakte74 m2
Inhoud347 m3

Bouw

SoortEengezinswoning
BouwvormBestaande bouw
Bouwjaar1948
Dak typeZadeldak
IsolatievormenDubbelglas
EnergielabelG

Indeling

Aantal verdiepingen3
Aantal kamers5
Aantal slaapkamers3
Aantal badkamers1

Maandlasten

Ligging Hoflaan 16

Voorzieningen

Centraal gelegen informatie over de buurt

Aantal inwoners

In de gemeente

49.035

Leeftijd

in percentages van totaal

Huishoudsamenstelling

in percentages van totaal

35%

20% NL

34%

20% NL

31%

20% NL

Vergelijkbaar woningaanbod