Ga naar inhoud

Te koop: woonhuis Oudeveen 110 3905 VW Veenendaal

Verkocht

€ 425.000,- k.k.

KEURIG ONDERHOUDEN, INSTAPKLARE TUSSENWONING MET LEUK AANGELEGDE TUIN!

Deze nette en complete tussenwoning biedt alles wat je zoekt: een fraaie achtertuin, een moderne inbouwkeuken, smaakvolle sanitaire voorzieningen en een algehele afwerking die tijdloos en sfeervol is. De woning is instapklaar en biedt veel woongenot. Wat deze woning daarnaast extra aantrekkelijk maakt, is de ligging. Je hebt het wijkwinkelcentrum De Ellekoot, sportvelden en scholen allemaal binnen handbereik. Of je nu rustig wilt genieten van je tuin of snel op pad wilt voor de dagelijkse boodschappen: hier is het allemaal mogelijk. De woning én de locatie maken dit een fijne plek om te wonen!

Ben je nieuwsgierig geworden? Plan snel een bezichtiging en ontdek zelf hoe deze woning jouw nieuwe droomplek kan worden! Wij heten je van harte welkom!

Vernieuwingen / Verbeteringen
In de periode 2018-2024 hebben de onderstaande werkzaamheden c.q. verbouwingen plaatsgevonden:
– radiatoren woonkamer en keuken vernieuwd (ca. 2018);
– kastenwand slaapkamer III gerealiseerd (ca. 2019);
– voor- en achtertuin volledig opnieuw aangelegd incl. overkapping (ca. 2019);
– binnendeur woonkamer en deur trapkast vernieuwd (2021);
– nieuwe trapleuningen (zwarte steigerbuizen) geplaatst (2021);
– 1e verdieping voorzien van nieuwe kozijnen met HR++ glas (oktober 2023);
– nieuwe schuttingen achtertuin geplaatst (april 2024);
– buitenschilderwerk opnieuw uitgevoerd (juli/augustus 2024).

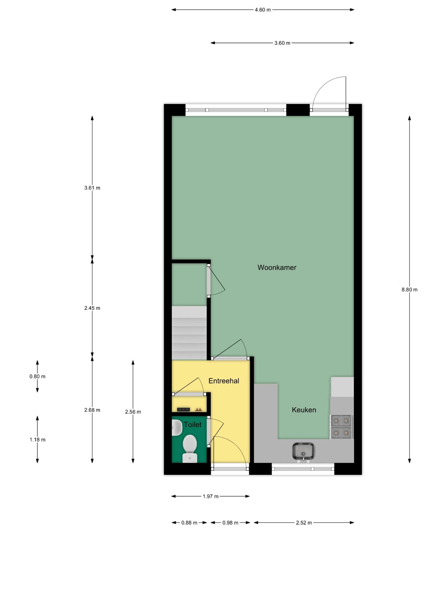
Begane grond
In de entreehal vind je de meterkast, trapopgang en de toiletruimte. De toiletruimte is voorzien van een wandcloset en een fonteintje; de wanden zijn geheel betegeld met witte wandtegels en op de vloer liggen antracietkleurige plavuizen.

De sfeervolle en tuingerichte woonkamer is voorzien van trapkast en een deur naar de tuin. In de gedeeltelijk open keuken is een U-vormige inbouwkeuken geplaatst, waarbij het brons/antracietgekleurde aanrechtblad fraai afsteekt bij de greywash walnootstructuur fronten. Deze complete inbouwkeuken is uitgerust met een combimagnetron, koelkast, 5-pits gas-op-glas-kookplaat, schouwafzuigkap (RVS), vaatwasser en een 1¼ spoelbak.

Afwerking begane grond
De wanden zijn afgewerkt met glasvezelbehang en hoge witte plinten en de vloer is voorzien van een laminaatvloer.

1e Verdieping
Aan de overloop grenzen 2 ruime slaapkamers en de badkamer. Voorheen telde deze verdieping 3 slaapkamers, maar er is van 2 slaapkamers 1 grote kamer gemaakt. Dit resulteert in een heerlijk ruime slaapkamer van maar liefst 19m2, die voorzien is van een grote kastenwand. Met 10m2 is de andere slaapkamer ook prettig ruim.
De nette en tijdloos ingerichte badkamer is voorzien van een designradiator, wastafelmeubel, een op maat gemaakt wandmeubel, wandcloset, douche met glazen deur, en een kunststof dakraam. Ook is er een aansluiting ten behoeve van een ligbad aanwezig. De badkamer is betegeld met witte wandtegels; de vloer en 1 wand in de douche (gedeeltelijk) zijn betegeld met antracietkleurige plavuizen.

Afwerking 1e verdieping
De overloop en beide slaapkamers zijn voorzien van een lichte eikenstructuur laminaatvloer en vrijwel alle wanden zijn afgewerkt met glasvezelbehang.

2e Verdieping
De voorzolder is voorzien van een dakraam, een praktische ombouw voor de wasmachine en droger, bergruimte achter knieschotten en een toegangsluik naar de bergzolder. Ook staat hier de HR-cv-combiketel (merk: Nefit / bouwjaar: 2008) opgesteld en de mechanische ventilatie-unit is netjes uit het zicht weggewerkt. De 3e slaapkamer is met 14m2 prettig ruim en is voorzien van een dakkapel, kastenwand, bergruimte achter knieschotten, inbouwspots en een radiator met ombouw.

Afwerking 2e verdieping
Ook de 2e verdieping is voorzien van een lichte eikenstructuur laminaatvloer; een deel van de wanden is afgewerkt met glasvezelbehang en een deel met spuitwerk.

Tuin
De fraai aangelegde achtertuin is gesitueerd op het oosten en is in 2019 nieuw aangelegd. Daarbij zijn er met grote grijze tegels een tweetal terrassen gecreëerd, zodat er op zonnige dagen altijd wel een plekje in zon of schaduw te vinden is. Op het terras bij de achtergevel kun je zon en schaduw doseren met behulp van de buitenzonwering. De terrassen worden van elkaar gescheiden door kunstgras, dat samen met de twee verhoogde plantenborders een mooie groene uitstraling aan deze fraaie tuin geeft. Achterin de tuin staat een praktische stenen berging. Zelfs de berging is een echte eyecatcher, want de voorzijde is bekleed met gepotdekselde Douglas-planken, die doorgetrokken zijn over de gehele breedte van de tuin. Hierdoor is naast de berging een praktische overkapping gecreëerd, waar je de beschikking hebt over een buitenkraan, stopcontacten en 2 afsluitbare poortdeuren naar het achtergelegen parkeerterrein.

In april 2024 zijn de schuttingen vervangen. Dit is met het hele blok woningen (Oudeveen 102-112) gedaan, zodat iedereen dezelfde nette erfafscheiding heeft. Er is gekozen voor houten schuttingdelen tussen en op betonnen poeren.

Net als de achtertuin is ook de voortuin in 2019 nieuw aangelegd. Je vindt hier dezelfde grijze tegels terug als in de achtertuin en een strook met beplanting scheidt de voortuin van het openbare voetpad. Een fraaie containerombouw zorgt ervoor dat de containers uit het zicht staan en je ruimte in de achtertuin overhoudt.

Kenmerken
Gebruiksoppervlakte: ca. 104m2
Externe bergruimte: ca. 7m2
Inhoud woning: ca. 355m3
Grondoppervlakte: 108m2
Bouwjaar: ca. 1982

Oppervlakten
Begane grond
Woonkamer & keuken: ca. 32m2

1e Verdieping
Slaapkamer I: ca. 19m2
Slaapkamer II: ca. 10m2
Badkamer: ca. 5m2

2e Verdieping
Slaapkamer III: ca. 14m2

Tuin
Berging: ca. 7m2
Overkapping: ca. 7m2

Omgeving
De woning is gelegen op een mooie en centrale locatie, in de woonwijk Veenendaal-West. Een woonwijk met alle denkbare voorzieningen binnen handbereik: zo kun je in het nabijgelegen wijkwinkelcentrum De Ellekoot terecht voor alle dagelijkse boodschappen, maar ook diverse (basis)scholen en sportaccommodaties bevinden zich op korte afstand. Reis je met het openbaar vervoer? Dan is treinstation Veenendaal-West binnen 5 minuten bereikbaar en anders kun je uitwijken naar station Veenendaal-De Klomp of station Veenendaal-Centrum. Met de auto ben je via de nabijgelegen Rondweg-West binnen mum van tijd bij autosnelwegen A12, A30 en A15. Aan de achterzijde van de woning is er ruim voldoende parkeergelegenheid aanwezig; ook vind je hier een speelterreintje voor de kids.

  • 104 m2
  • 108 m2
  • 3

Kenmerken Oudeveen 110

Overdracht

Koopprijs€ 425.000,- k.k.
AanvaardingIn overleg

Oppervlaktes en inhoud

Perceel oppervlakte108 m2
Woonoppervlakte104 m2
Inhoud355 m3

Bouw

SoortEengezinswoning
BouwvormBestaande bouw
Bouwjaar1982
Dak typeZadeldak
IsolatievormenDakisolatie, Muurisolatie, Vloerisolatie, Dubbelglas, HR glas
EnergielabelB

Indeling

Aantal verdiepingen3
Aantal kamers4
Aantal slaapkamers3
Aantal badkamers1

Maandlasten

Ligging Oudeveen 110

Voorzieningen

Centraal gelegen informatie over de buurt

Aantal inwoners

In de gemeente

64.273

Leeftijd

in percentages van totaal

Huishoudsamenstelling

in percentages van totaal

27%

20% NL

31%

20% NL

41%

20% NL

Vergelijkbaar woningaanbod